Proyectos
Sustentabilidad
Servicios
Nosotros
Contacto
Proyectos
Sustentabilidad
Servicios
Nosotros
Contacto
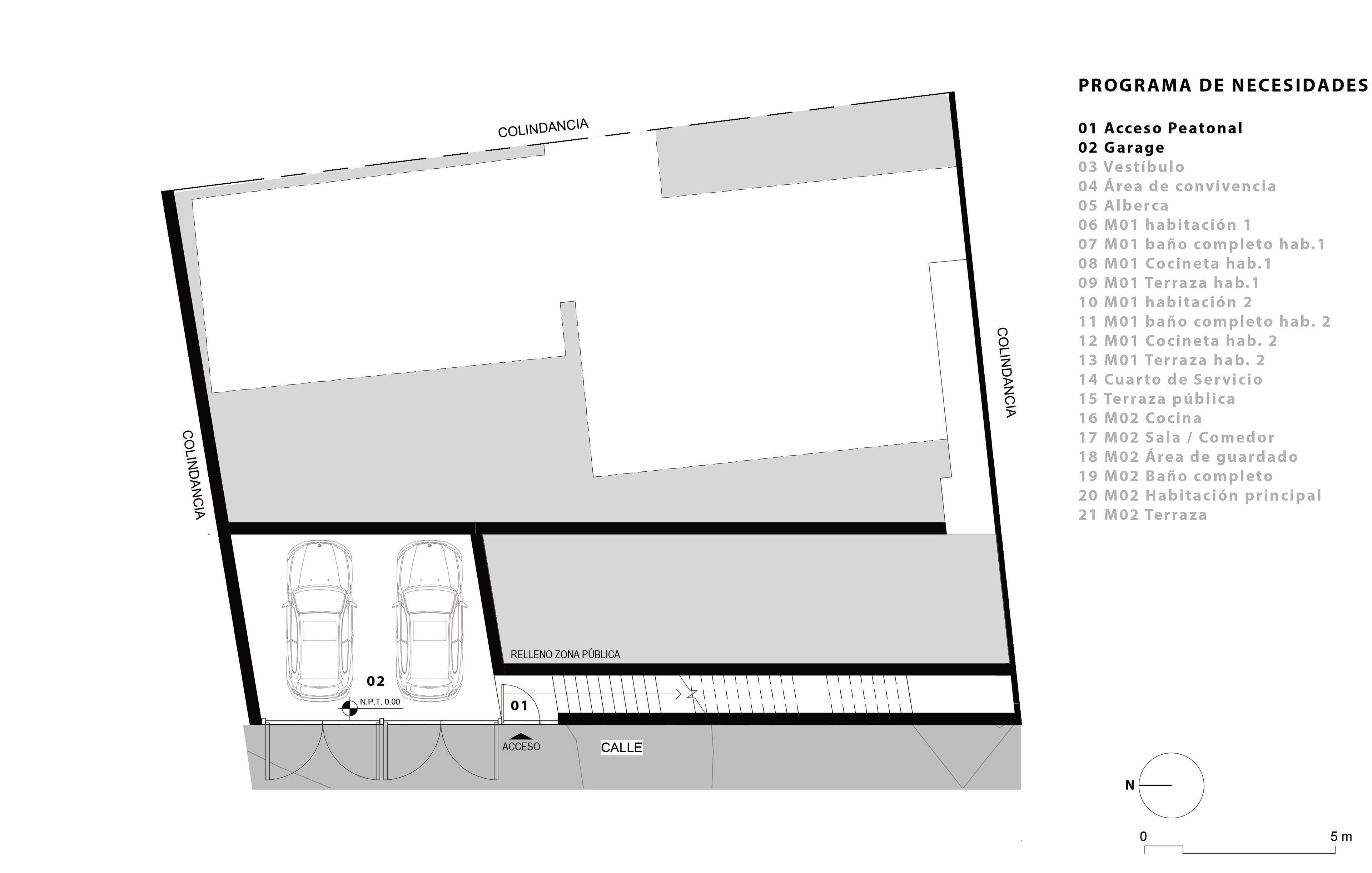
LA JOYA
VIVIENDA VACACIONAL SAN AGUSTINILLO, TONAMECA, OAXACA. PROYECTO Y SUPERVISIÓN, 2023
MÁS PROYECTOS
OFICINAS BM
HOTEL ALTOTONGA
KIDIATRAS LEVANT
CASA TLACUACHE
CASA LAS CUMBRES
CASA PP
CASA OAXACA
Kidiatras Hatver
CASA EL TRIÁNGULO
CASA LA PAZ
↑
Back to Top