Proyectos
Sustentabilidad
Servicios
Nosotros
Contacto
Proyectos
Sustentabilidad
Servicios
Nosotros
Contacto
veo estudio

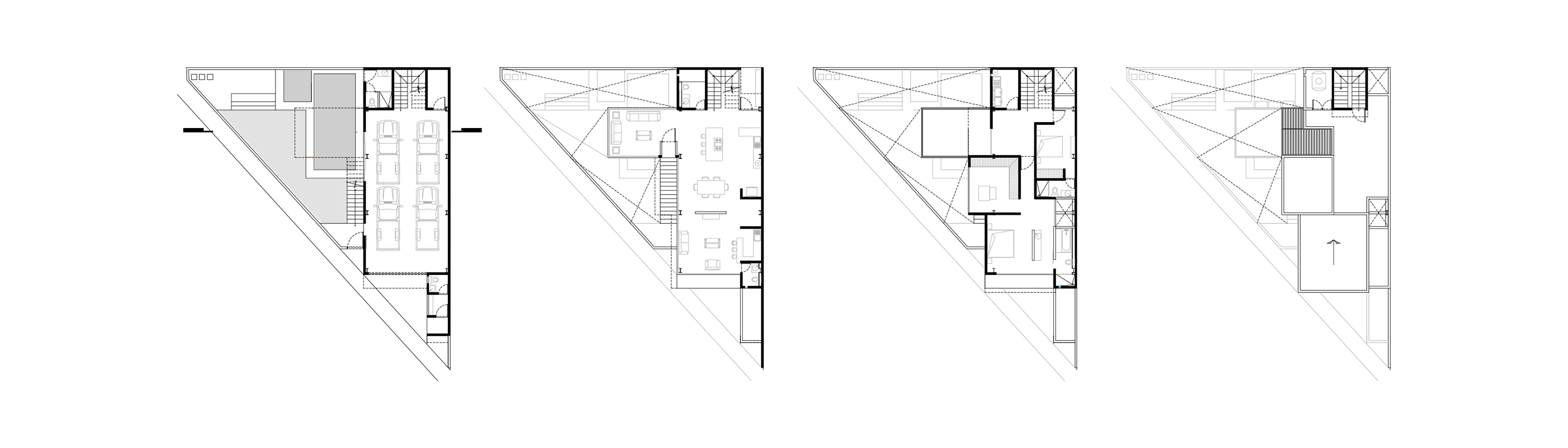
CASA EL TRIÁNGULO

VIVIENDA FAMILIAR XALAPA, VERACRUZ, MÉXICO PROYECTO Y OBRA, 2014 + ALTERNATIVA DYC

MÁS PROYECTOS

DEPARTAMENTOS PARA ESTUDIANTES
Rancho MG
OFICINAS BM
CASA LA PAZ
CASA COATEPEC
Kidiatras Hatver
Casa VL
HOTEL ALTOTONGA
CASA OAXACA
CASA VES
↑Back to Top
veö estudio