Proyectos
Sustentabilidad
Servicios
Nosotros
Contacto
Proyectos
Sustentabilidad
Servicios
Nosotros
Contacto
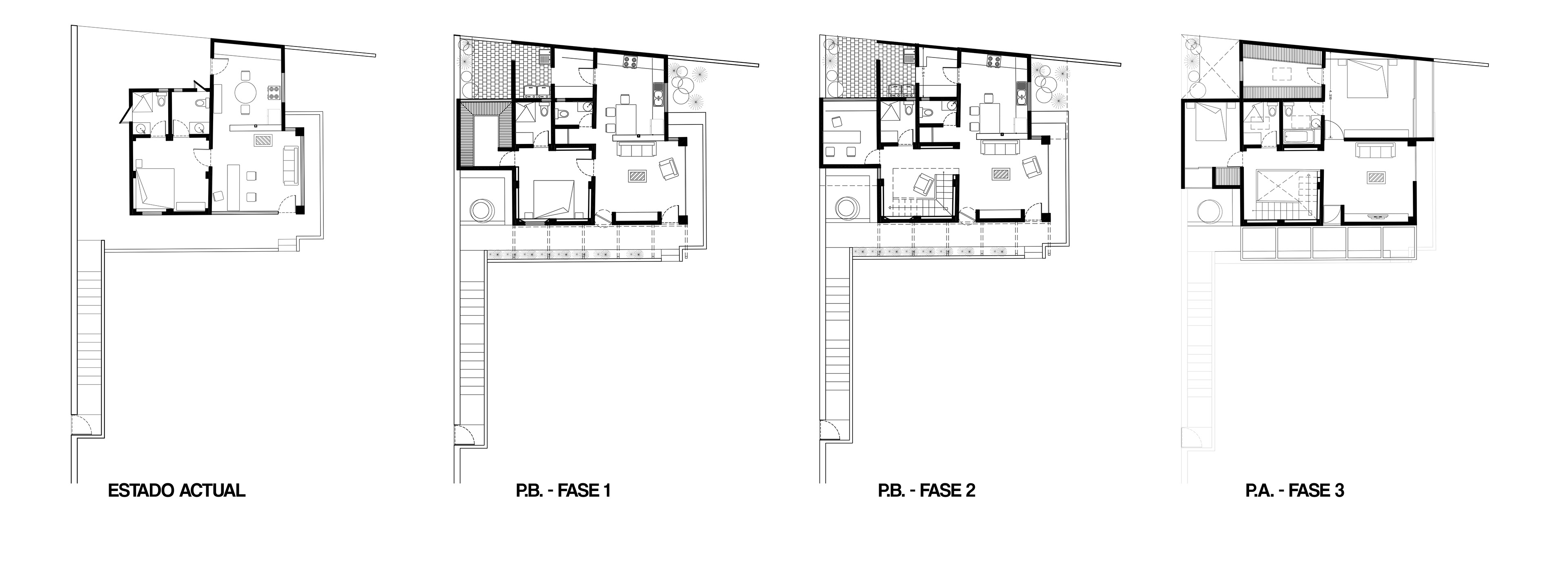
CASA COATEPEC
REMODELACIÓN Y AMPLIACIÓN VIVIENDA FAMILIAR COATEPEC, VERACRUZ, MÉXICO PROYECTO, 2018
MÁS PROYECTOS
LA JOYA
CASA VES
Rancho MG
OFICINAS BM
Casa VL
CASA LA PAZ
DEPARTAMENTOS PARA ESTUDIANTES
CASA PP
Casa Cháan
CASA EL TRIÁNGULO
↑
Back to Top