Proyectos
Sustentabilidad
Servicios
Nosotros
Contacto
Proyectos
Sustentabilidad
Servicios
Nosotros
Contacto
veo estudio

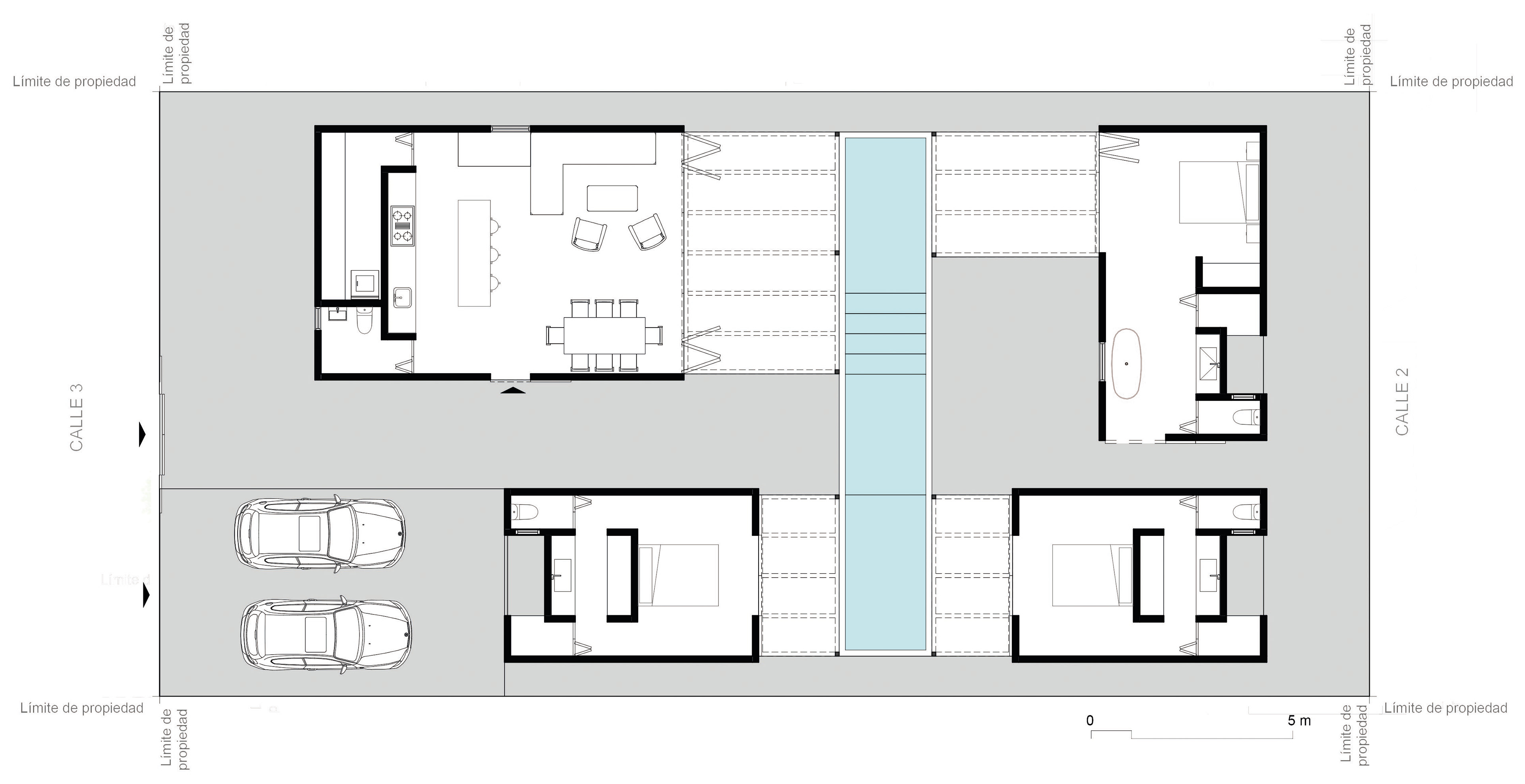
Casa Cháan

VIVIENDA VACACIONAL LA MANCHA, VERACRUZ, MÉXICO PROYECTO Y OBRA,  2021

MÁS PROYECTOS

KIDIATRAS LEVANT
CASA EL TRIÁNGULO
PROYECTO PLAYA ARAGÓN
LA JOYA
CASA LA PAZ
CASA VES
CASA ARRAYANES
Kidiatras Hatver
ALDEA ELVIA
HOTEL ALTOTONGA
↑Back to Top
veö estudio