Proyectos
Sustentabilidad
Servicios
Nosotros
Contacto
Proyectos
Sustentabilidad
Servicios
Nosotros
Contacto
veo estudio

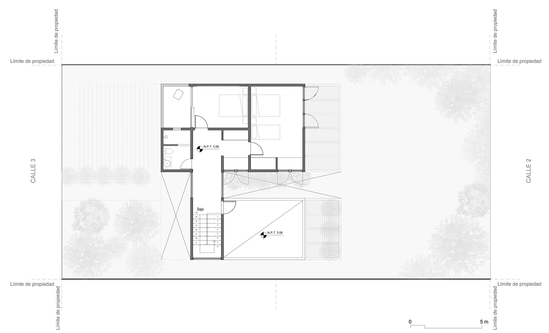
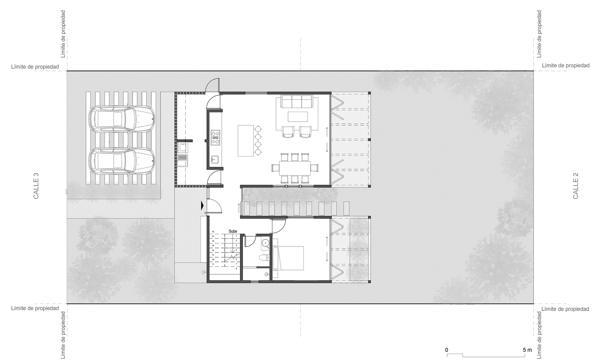
Casa VL

VIVIENDA VACACIONAL LA MANCHA, VERACRUZ, MÉXICO PROYECTO Y OBRA,  2021

MÁS PROYECTOS

Casa Cháan
DEPARTAMENTOS PARA ESTUDIANTES
PROYECTO PLAYA ARAGÓN
CASA EL TRIÁNGULO
CASA ARRAYANES
ALDEA ELVIA
LA JOYA
KIDIATRAS LEVANT
CASA VES
CASA COATEPEC
↑Back to Top
veö estudio